Te koop: Exclusieve set van 3 percelen naast het strand van Sa Caleta, Lloret de Mar
Belangrijkste eigenschappen perceel
- Zeezicht
- Eerste lijn zee
- Natuurlijke lichtinval
- Uitzicht
- Panoramisch zicht
- Dichtbij internationale scholen
Wat je moet weten over deze perceel
Een uitstekende investeringsmogelijkheid wordt geboden in een van de meest gewilde gebieden van Lloret de Mar, op slechts enkele meters van het iconische strand Sa Caleta en met loopafstand tot alle essentiële voorzieningen, winkels, restaurants en toeristische attracties zoals het kasteel van Lloret, de boulevard en het kustpad.
De percelen genieten een bevoorrechte locatie, ideaal voor zowel de bouw van hoogwaardige eengezinswoningen als voor een exclusief woonproject in een rustige, goed bereikbare omgeving vlakbij de zee.
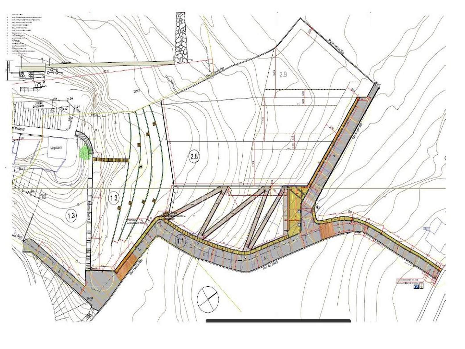
Oppervlakken:
Perceel 1: 1.415 m²
Perceel 2: 1.360 m²
Perceel 3: 1.163 m²
Gegevens over stadsplanning:
Totale bebouwbare oppervlakte: 800 m²
Maximale bebouwbare oppervlakte per perceel: 266,66 m²
Maximaal aantal woningen: 3
Een unieke kans om een project te ontwikkelen op een uitzonderlijke locatie, met de nabijheid van de zee, voorzieningen op loopafstand en een hoog potentieel voor waardevermeerdering.
Lloret de Mar, Costa Brava: Omgeving en ligging van de woning
De omgeving combineert de schoonheid van de kustlijn met het rijke culturele en historische erfgoed van Lloret de Mar: het imposante kasteel van Lloret, de pittoreske boulevard en het kustpad, ideaal voor schilderachtige wandelingen en buitenactiviteiten, liggen allemaal op slechts enkele minuten afstand. Deze locatie biedt de mogelijkheid om te genieten van een ontspannen levensstijl aan zee zonder in te leveren op gemak en een goede bereikbaarheid van het stadscentrum.
AICAT: 13225
API: 4089 
Vergelijkbare woningen te koop in Lloret de Mar
Niet echt wat u zoekt?

























































































