Gerestaureerd landhuis met 5 slaapkamers, een gewijde kapel, tuinen, een zoutwaterzwembad en originele afwerkingen zoals hydraulische tegelvloeren te koop in het centrum van Argentona.
Belangrijkste eigenschappen villa
- Zwembad
- Tuin
- Garage
- Natuurlijke lichtinval
- Mozaïeke tegelvloeren
- Hoge plafonds
- Parkeerplaats
- Volledig uitgeruste keuken
- Speelplaats
- Rolstoeltoegankelijk
- Open keuken
- Open haard
- Inloopkast
- Inbouwkasten
- Exterior
- Dubbel glas
- Diervriendelijk
- Dichtbij openbaarvervoer
- Chill out area
- Bijkeuken
- Berging
- Alarmsysteem
- Airconditioning
- Plattegrond 354m²
- Constructed area 354m²
Wat je moet weten over deze villa
Lucas Fox presenteert dit volledig gerenoveerde landhuis in het hart van Argentona. Het huis is zorgvuldig gerestaureerd met behoud van het oorspronkelijke karakter: hydraulische tegelvloeren, zeer hoge plafonds, grote ramen en binnenbogen, om er maar een paar te noemen. Tegelijkertijd is het gemoderniseerd en voorzien van alle gemakken en een elegante, tijdloze en functionele stijl.
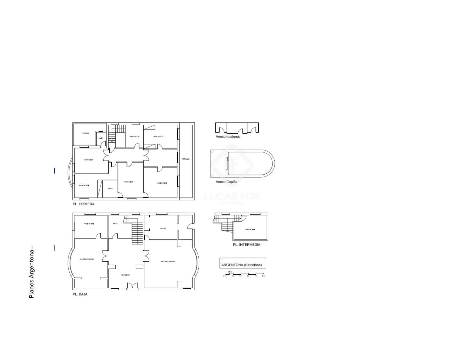
Op de begane grond worden we verwelkomd door een ruime hal met zeer hoge plafonds die een ruimtelijk gevoel geven. Vanuit hier hebben we toegang tot een multifunctionele ruimte met open haard, een slaapkamer of multifunctionele ruimte, de woon-/eetkamer met een volledig uitgeruste open keuken en een spectaculaire veranda die aansluit op de prachtige tuin. Op dezelfde verdieping vinden we ook een complete gastenbadkamer en diverse buitentoegangen.
Op de bovenverdieping bevindt zich het slaapgedeelte met in totaal vijf slaapkamers: twee met en-suite badkamers en drie met een gedeelde badkamer. Alle slaapkamers zijn ruim en licht. Bijzonder opvallend is de master suite, met een grote kleedkamer, een ruime badkamer en een privéterras met een spectaculair uitzicht.
De tuin is bijzonder indrukwekkend dankzij de royale afmetingen, het volledig vlakke perceel en de rust die het omringt. Het zoutwaterzwembad is strategisch gelegen aan het einde van het perceel, waardoor gasten optimaal kunnen genieten van de aangelegde tuin. Een uniek kenmerk van het pand is de gewijde kapel uit 1929, ontworpen door architect Lluís Bonet i Garí, met originele schilderingen in de apsis van Antoni Vilà Arrufat.
Extra voorzieningen zijn onder andere airconditioning per zone, verwarming op aardgas, automatische zonwering, indirecte verlichting in de gemeenschappelijke ruimtes, buitenbergingen, een alarm, glasvezel, een video-intercom en een automatische poort. Dit alles op een perceel van 1.380 m² op het zuidoosten, wat privacy, natuurlijk licht en een hoogwaardige omgeving biedt.
Neem contact met ons op voor meer informatie.
Indeling villa
Begane grond
- Grote lobby met hoge plafonds
- Multifunctionele ruimte met open haard
- Extra slaapkamer of multifunctionele ruimte
- Woon-eetkamer met volledig ingerichte open keuken
- Spectaculaire veranda met directe toegang tot de tuin
- Volledige gastenbadkamer
Bovenverdieping
- Slaapkamer met eigen badkamer
- 3 slaapkamers
- Volledige badkamer
- Hoofdslaapkamer met grote kleedkamer, complete badkamer en privéterras met spectaculair uitzicht
Buitenruimte
- Grote tuin en volledig vlak perceel
- Zoutchloorzwembad gelegen aan het einde van de tuin
- Gewijde kapel uit 1929 (werk van Lluís Bonet i Garí, met schilderijen van Antoni Vilà Arrufat)
- Buitenopslagruimtes
Argentona, Barcelona: Omgeving en ligging van de woning
Argentona is een charmant stadje met prachtige architectuur. Het is uitstekend gelegen, verscholen tussen het Maresme-gebergte en op slechts een paar minuten rijden van de kust van Maresme. Vanuit Argentona is er uitstekende toegang tot Barcelona per auto en trein.
Dankzij de uitstekende keuken, prachtige stranden, natuurlijke omgeving en het grote aanbod aan buitenactiviteiten, kent het land een zeer hoge levensstandaard.
Energie certificaat van de woning
Energy consumption G : 409kWh/m²/year
Emissions G : 86kg CO₂/m²/year
- 2
- 3
- 4
- 5
- 6
- 7
- 8
- 9
- 10
- 11
- 12
- 13
- 14
- 15
- 16
- 17
- 18
- 19
- 20
- 21
- 22
- 23
- 24
- 25
- 26
- 27
- 28
- 29
- 30
- 31
- 32
- 33
- 34
- 35
- 36
- 37
- 38
- 39
Vergelijkbare woningen te koop in Maresme Kust
Niet echt wat u zoekt?
































































































































































































































































